Nowoczesny teren inwestycyjny w sercu łódzkiej strefy technologii Dubois / Bionanopark
Szukasz miejsca, które realnie pracuje na wartość Twojej inwestycji? Poznaj teren przy ul. Stanisława Dubois wyjątkową przestrzeń położoną w sercu Bionanoparku, jednego z najbardziej innowacyjnych punktów na mapie Łodzi.
To tu łączy się nauka, biznes i nowoczesne technologie. (...)
Nowoczesny teren inwestycyjny w sercu łódzkiej strefy technologii Dubois / Bionanopark
Szukasz miejsca, które realnie pracuje na wartość Twojej inwestycji?
Poznaj teren przy ul. Stanisława Dubois wyjątkową przestrzeń położoną w sercu Bionanoparku, jednego z najbardziej innowacyjnych punktów na mapie Łodzi.
To tu łączy się nauka, biznes i nowoczesne technologie. Bionanopark oferuje zaplecze badawcze, inkubacyjne i inwestycyjne, przyciągając firmy z branż high-tech, med-tech, IT oraz sektorów przyszłości.
Otoczenie, które inspiruje do rozwoju. W sąsiednich budynkach działają nowoczesne biura, instytucje publiczne i firmy wykorzystujące potencjał tej lokalizacji m.in. Wojewódzki Fundusz Ochrony Środowiska i Gospodarki Wodnej.
To miejsce, gdzie biznes rozkwita dzięki sprzyjającej infrastrukturze i energii otoczenia.
Dojazd
Zarówno samochodem, jak i komunikacją szybki, wygodny i bezproblemowy. Teren jest znakomicie skomunikowany z centrum Łodzi i najważniejszymi punktami miasta.
Ten obszar to gotowe środowisko dla działalności gospodarczej i biurowej. Działa tu wiele firm usługowych i technologicznych, co potwierdza atrakcyjność lokalizacji oraz dostęp do funkcjonalnej infrastruktury.
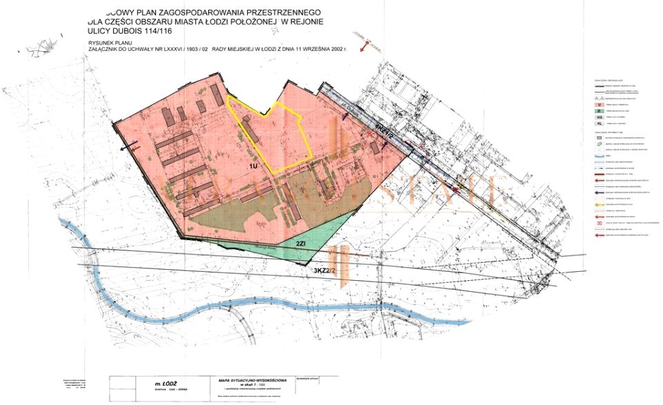
Cały teren jest objęty obowiązującym MPZP Plan 31, który jasno określa przeznaczenie: zabudowa usługowa.
Daje to inwestorowi pewność i stabilność planistyczną możesz działać szybko i bez niespodzianek.
Dostęp do pełnej infrastruktury technicznej Media dostępne w drodze:
woda
prąd
kanalizacja
gaz
Gotowy teren pod nowoczesną inwestycję usługową, biurową lub technologiczną.
Lokalizacja, potencjał i środowisko biznesowe sprawiają, że to miejsce pracuje na Twoją korzyść już od pierwszego dnia.
Możliwości inwestycyjne
Lokalizacja w strefie o profilu naukowo-technicznym pozwala na realizację projektów o wysokiej rentowności i dużym potencjale rozwoju.
Możliwe kierunki zabudowy i funkcje:
A. Zabudowa biurowa
budynki biurowe klasy B+ / A,
siedziby firm technologicznych, centrów naukowo-rozwojowych, startupów, inkubatorów,
biura operacyjne i call-center.
B. Usługi komercyjne i instytucjonalne
firmy doradcze, kancelarie, centra usług wspólnych,
firmy szkoleniowe i edukacyjne,
obiekty instytucjonalne związane z administracją lub działalnością publiczną.
C. Inwestycje technologiczne i badawcze
laboratoria, centra rozwojowe, infrastruktura testowa,
firmy z sektora life-science, biotechnologii, IT, elektroniki.
D. Funkcje wspierające
obiekty usługowe obsługujące użytkowników strefy: gastronomia, usługi podstawowe,
budynki magazynowo-techniczne o nieuciążliwym charakterze,
parkingi naziemne lub garaże.
Najważniejsze atuty nieruchomości
lokalizacja w jednej z najważniejszych stref technologicznych Łodzi Bionanopark,
objęcie działki aktualnym MPZP pewność i przewidywalność procesu inwestycyjnego,
pełne uzbrojenie w media w drodze,
otoczenie podmiotów biznesowych i instytucji publicznych,
doskonała komunikacja z centrum miasta i kluczowymi węzłami transportowymi,
możliwość realizacji szerokiego spektrum projektów usługowych, biurowych i technologicznych.
Kontakt
Zapraszam do kontaktu w celu uzyskania pełnej dokumentacji oraz omówienia potencjału inwestycji.
Maciej Olejnik
Ogłoszenie ma charakter informacyjny i nie stanowi oferty w rozumieniu art. 66 1 Kodeksu cywilnego
Z pasją do nieruchomości. Z troską o Twój spokój.
Verano Estate powstało z myślą o klientach, którzy oczekują czegoś więcej niż standardowej obsługi. Od początku naszym celem było stworzenie marki, która łączy profesjonalizm i skuteczność z prawdziwą kulturą współpracy.
Niniejsze ogłoszenie jest wyłącznie informacją i nie stanowi oferty w rozumieniu art. 66 1 Kodeksu Cywilnego
Oferta wysłana z programu dla biur nieruchomości ASARI CRM ( )