Mieszkanie Łódź
Polesie, Łódź, łódzkie
- 524 286 zł
- 52,56 m²
- 9 975 zł/m²
Dominik Czupryni...
Skontaktuj się
Mieszkanie Łódź
Polesie, Łódź, łódzkie
zaktualizowane:
23 marca 2026
Mieszkanie Łódź
Zaktualizowane: 23 marca 2026
524 286 zł 52,56 m² 9 975 zł/m²
Skontaktuj się, zanim wzrośnie
średnie zainteresowanie
1/4
3
-
parking publiczny / na ulicy
deweloperski
Zobacz na mapie
Piętro:
1/4Liczba pokoi:
3Rok budowy:
-Miejsce parkingowe:
parking publiczny / na ulicyStan mieszkania:
deweloperskiSzczegóły ogłoszenia
- Typ oferty: mieszkanie na sprzedaż
- Cena: 524 286 zł (9 975 zł/m²)
- Rynek: pierwotny (zobacz inne nowe mieszkania w Łodzi)
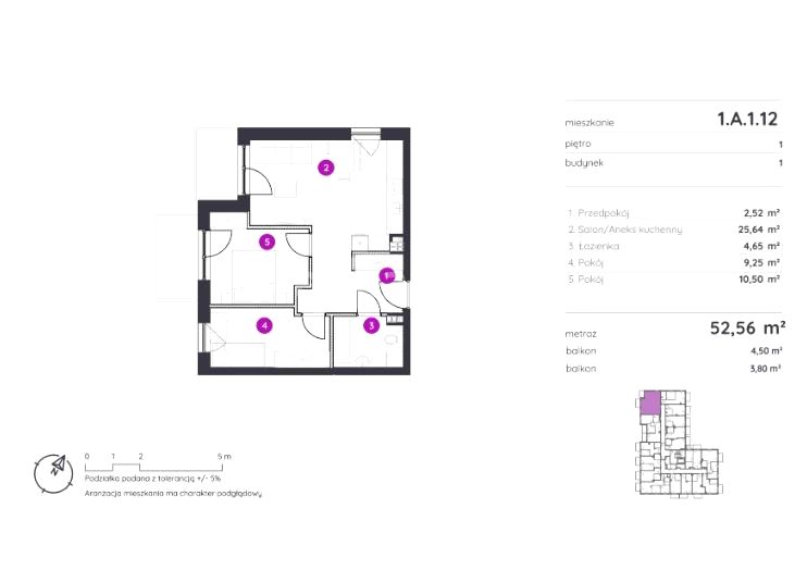
- Charakterystyka mieszkania: 52,56 m², 3 pokoje, 1 łazienka; stan: deweloperski
- Rozkład mieszkania: piętro 1/4, jednopoziomowe
- Powierzchnia dodatkowa: balkon
- Kuchnia: z oknem
- Świadectwo charakterystyki energetycznej: nie
- Miejsce parkingowe: parking publiczny / na ulicy
- Źródło: biuro nieruchomości: Expander Nieruchomości, zaktualizowane: 23.03.2026
- numer ogłoszenia: EX650296
Lokalizacja
- Adres: Polesie, Łódź, łódzkie
Opis nieruchomości
- Mieszkanie od dewelopera
- Brak prowizji
- Brak PCC
Nowe, bardzo komfortowe mieszkanie w wygodnej lokalizacji!
Zewnętrzne biuro sprzedaży dewelopera prezentuje 3 pokojowe mieszkanie o powierzchni 52,56 m2 + 2 balkony, lokal usytuowany na 1 piętrze w bloku z cicha windą.
Mieszkanie dobrze doświetlone, przemyślany rozkład - umożliwia wiele aranżacji. (...)
660 687...
660 687 591

