Lokal użytkowy Łódź
Bałuty, Łódź, łódzkie
- 20,18 zł/m²
- 223 m²
- 4 500 zł
Lokal użytkowy Łódź
Bałuty, Łódź, łódzkie
zaktualizowane:
8 czerwca 2025
Lokal użytkowy Łódź
Zaktualizowane: 8 czerwca 2025
20,18 zł/m² 223 m² 4 500 zł
-
6
-
-
-
Zobacz na mapie
Przeznaczenie:
-Pomieszczenia:
6Parking:
-Rodzaj wejścia:
-Rodzaj budynku:
-Szczegóły ogłoszenia
- Typ oferty: lokal użytkowy do wynajęcia
- Czynsz wynajmu: 4 500 zł (20,18 zł/m²)
- Charakterystyka lokalu: 223 m², 6 pomieszczeń
- Rozkład lokalu: piętro
- Źródło: ogłoszenie prywatne, zaktualizowane: 08.06.2025
Lokalizacja
- Adres: św. Teresy 105J, Bałuty, Łódź, łódzkie
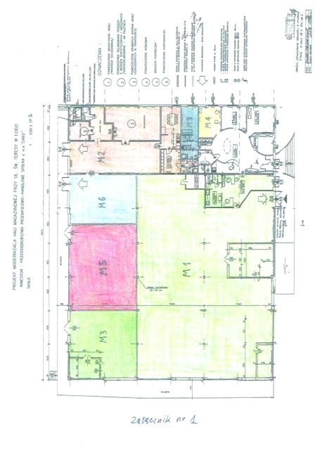
Opis nieruchomości
OGŁOSZENIE BEZPOŚREDNIE - BEZ PROWIZJI
222.83 m2 z czego 128 m2 ogrzewanych zawiera szatnię z WC i prysznicem i 4 pomieszczenia. Jedno zawiera wyciąg przemysłowy ( dawniej stolarnia ). Pozostałe 94,83 m2 hala nieogrzewana. Wejście z rampy. Na szkicu oznaczenie całości M2. Mamy również do wynajęcia magazyn 185 m2 z WC, prysznicem i aneksem przymagazynowym oznaczony jakoM5. Jest też magazyn 100 m2 z WC i aneksem przymagazynowym oznaczony jako M6 oraz kompleks pomieszczeń biurowych. (...)

